17721:店舗・事務所 ベルハイツ望月テナント
| 賃料 | 6.6万円 |
|---|---|
| 共益費・管理費 | 5,500円 |
| 坪賃料 | 6,242円 |
| 所在地 | 京都市伏見区向島善阿弥町 |
| 交通 | 京阪宇治線 観月橋駅まで 徒歩8分 京都市伏見区 京都市伏見区 |
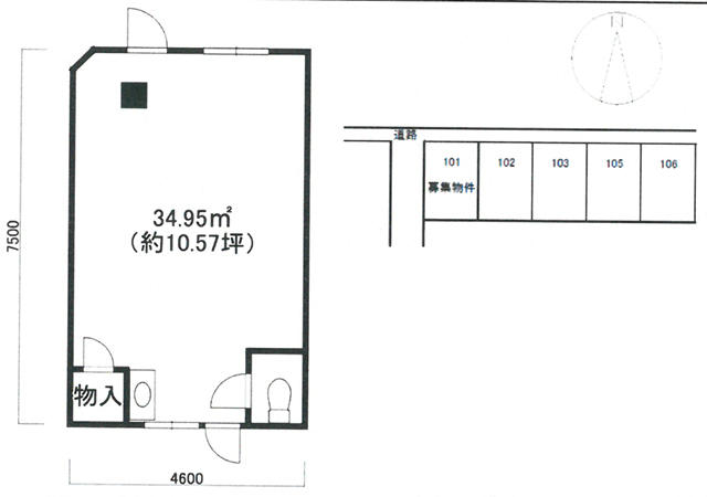
| 面積 | 34.95m²(10.57坪) |
| 築年月 | 1979/04 |
| 敷金 | - |
|---|---|
| 礼金 | - |
| 保証金 | 30万円 |
| 建物構造 | 鉄筋コンクリート造 |
| 所在階 | 1階/3階建 |
| 取引態様 | 仲介 |
| 更新 | 可 5年 更新料:66,000円 |
| 敷引・償却 | - |
|---|---|
| 火災保険 | - |
| 保証会社 | 必須 |
| 駐車場 | 無 |
| 諸費用 | |
| 引渡時期 | 2026年02月上旬 |
特色
●北西角地に面す3階建ビルの1階部分 ●電気、上水道、下水道、都市ガス ●保証金返還率⇒1年未満:0%、1年以上5年未満:50%、5年以上:100% ●連帯保証人⇒2名要。保証委託契約併用(保証料要) ●連帯保証人は極度額(158.4万円)を限度とし借主の債務について連帯保証する ●水道代:2,200円(税込、年1回精算) ●用途地域:第1種住居地域 ●京都市景観法・広告物規制あり ●業種:相談 ●敷地面積:172.43㎡(52.16坪) ●賃料・管理費・更新料は税込 ●残置物のエアコンあり ●現状貸し!、
周辺地図
位置情報に関するご注意:現在位置情報は精査中の為、正確ではない場合があります。あくまで参考程度の情報となります。







