18809:店舗・事務所 コト―ハイツ伏見稲荷 C棟
| 賃料 | 18.7万円 |
|---|---|
| 共益費・管理費 | 33,000円 |
| 坪賃料 | 8,563円 |
| 所在地 | 京都市伏見区深草下川原町 |
| 交通 | 京阪本線 伏見稲荷駅まで 徒歩8分 京都市伏見区 京都市伏見区 |
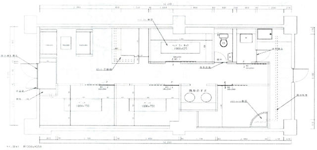
| 面積 | 72.19m²(21.83坪) |
| 築年月 | 1982/07 |
| 敷金 | 2ヶ月 |
|---|---|
| 礼金 | 2ヶ月 |
| 保証金 | - |
| 建物構造 | 鉄筋コンクリート造 |
| 所在階 | 1階/7階建 |
| 取引態様 | 仲介 |
| 更新 | 2年 |
| 敷引・償却 | - |
|---|---|
| 火災保険 | 要加入- |
| 保証会社 | 必須 |
| 駐車場 | 有 |
| 諸費用 | |
| 引渡時期 | 即時 |
特色
◆業種及び営業時間に制限あり ◆駐車場1台無料 ◆電気、上水道、下水道、都市ガス ◆準工業地域
周辺地図
位置情報に関するご注意:現在位置情報は精査中の為、正確ではない場合があります。あくまで参考程度の情報となります。








